Document shop wiring...

Installed car radio in shop turn shop re-wire
Using Converted old computer power supply (ATX) for 12v source
with plug in AC/DC transformer to power memory when ATX off, which led to adding a hot plug which led to rewiring shop.

Well not a rewire but splitting circuit lines, adding/moving plugs to different branches..

one thing leads to another...
This page entirely for my own documentation-doubtful anyone would find useful or entertaining

Starting at the beginning and subsequent changes/additions along the way

Long story short, All power in shop was controlled by 2 switches. I have 2 circuits a 20 and 15 amp. Radio install led to running new unswitched 120v line, changing existing plug at computer to unswitched. Be nice not to accidentally turn off light switch and dump computer. Its also where new power supply for new radio is. Then split existing switched branch to move couple of other receptacles that would be nice if unswitched. However it added a bunch of stuff I want connected to main kill switch. Need to split the split....

The other 20 amp circuit I added a receptacle to remove electric heater from 15 amp circuit. However that circuit I also had defeated kill switch adding an exterior motion light so it had to stay energized. Noted the heater next morning was on....

Relying on memory to turn off or unplug stuff isn't an option. Sometimes and or nightly just need to turn off a switch and walk out the door- That's why I had ran everything thru switches, Don't need to check if tools etc left plugged in. I had defeated the 20 amp circuit kill switch some time ago when I added exterior motion sensor light and circuit had to say on. Now defeated the other circuits kill switch.

That's how we got here, adding changing stuff until not what was designed. Ended up twice as much stuff hot when main shop kill switches turned off, Then add a line cant turn off if needed, short of breaker, ..Some serious rethinking required.


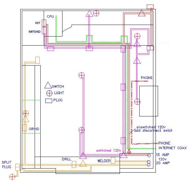
So starting at the beginning of this convoluted procession:

Basically where I started. THe plug at upper left for computer is where new radio and power supply set. Plug in transformer wire were run to hot plug at lower right. Started out simply running a pair of 18ga wires all the way to front of shop for the transformer to plug in that wasn't turned off at night for radios memory. Which worked keeping memory alive when ATX and rest of shop shut off. Discovered though this ATX power supply needs to be plugged in a while(standby) before radio is turned on. Turning on power to ATX, turning it and radio on (disconnecting wall wart) before it 'charges' it would shut off, dumping memory as wall wart no longer connected.

So power supply really needs to be in standby,

So I'll run a new always hot line & plug to keep power supply in standby, then realized be nice to have computer on switched line. Also there's an outside plug, top right, that's used for trucks trickle charger-when used I have to leave entire shop energized so be nice if it were on that separate feed.

So just disconnect above plug from switched line and connect to the new always hot line.

Ran new wire from before main switch, shown red, converting existing CPU plug to always hot.. Also disconnect branch line that fed outside plug from switched line and an tied to new hot line.

Few gotchas, the newly converted plug that power supply & computer are plugged into there is several other things plugged in that don't need to be or want hot. Second the branch that feeds truck charger plug also feed couple of lights (though I didn't realize until later). So now we have a whole bunch of stuff on the unswitched line. Just more stuff to check and turn off-maybe its ok. First night Margaret went to shut down shop and the over head light stayed on. She comes in ? one of the shop lights wont turn off? Oh-I simply hadn't checked, they are downstream from the moved outside plug. I had remembered the overhead lights branching off before the outside plug. doh

And then the electric heater on the 20 amp circuit. Decided it would be better to move electric heater to off the 15 amp line. So added receptacle for it. Next morning coming out to shop noted the heaters indicator light is on...hmmm. If the heaters switch were left on means it could have run all night- Not shown but outside motion light is tied into outside grinder plug so I can no longer turn that circuit off either.

The 20 amp circuit been want to change since I had added outside light, now even more motivation. The interior lights on top of unneeded stuff on hot line make redoing worth while.

First the 15 amp circuit.

Decided to run a separate additional receptacle beside the existing one to have both switched an un switched boxes. Leave the little surge box to the unswitched line for cpu, monitor and ATX power supply power strip, move everything else to switched receptacle thru another power strip. Amplifier, pencil sharpener, cabinet light, fan.

That was easy, cut a hole,insert box, run short length of romex to where existing plug was previously tied. Now were happy. On to the overhead lights.

The exterior truck plug and over head lights an issue.

Simply can no longer easily get between the 2. I can disconnect but cant retrieve or replace the branch wire that goes up to plug from current route. Well not without some deconstruction-cutting in a new box-not worthwhile. The wires run thru outside receptacle but also thru separate surface mount switch. The feed is to a overhead receptacle, the overhead lights plug in. I can run new wire up to it from the front side down, but the existing feed? I could put another box and abandon & terminate the current feed in it, wouldn't disturb exiting plug and switch.

Hmm Then I realized I could split the existing receptacle, one half of receptacle feed from hot line. Leave everything as is, simply run new wire up to feed the other half of receptacle with switched feed to plug in lights!

Cool and simple. Well easy solve, running new wire in wall took a bit, tapped switched line. Half of overhead receptacle feeding lights that are on main kill switch. The other half always hot, mostly a safe termination for end of hot line without redoing stuff. Good place for phone charger.

Lastly I really did not like no way to kill the new hot line. There shouldn't be anything plugged into hot line that would require EM action, IE arrant right angle grinder with wire cup flopping around the floor-but stuff happens.

Used a weather tite snap lid cover so switch cant accidentally turned off. Done. Coincidentally there's the little wall wart that started all this....Wires run so not moving unless it quits.

    20 amp circuit
Just a matter of running new wire from outside light receptacle to existing duplex kill switch. Main power feeds it so Ill connect light power inside switch box before switch is fed. Same issue though as far as the receptacle. Its placed under roof eave and light plugged in. Its currently fed by plug below, it's where I grind outside-

A bit more exposed the lower receptacle is sealed. I would need to break loose from wall to unwire feed to upper plug. Not that big of an issue but simpler is to also split upper receptacle and not having to deal with resealing/paint not to mention pulling the wire. So split the receptacle, one side unchanged and on kill switch, one side hot for light plugged into it. One of those thing when I originally hung light I should have run separate feed-but hey, there's a plug right there...sometimes those shortcuts comeback on ya.

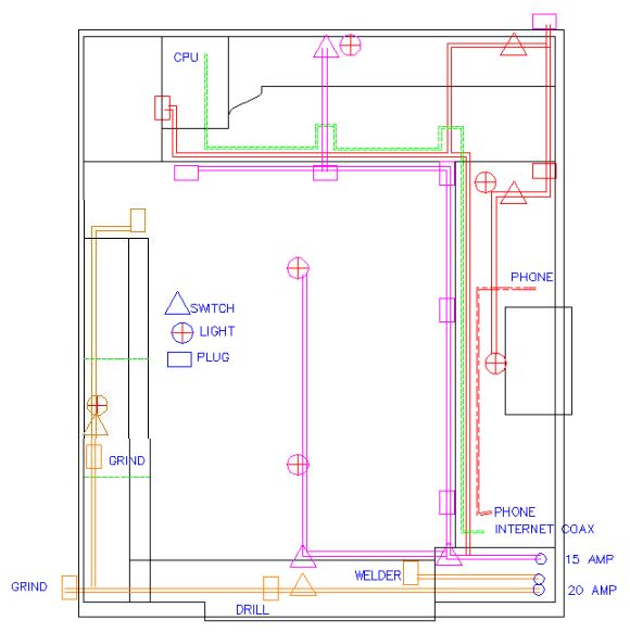
And final wiring cartoon. Functioning kill switches that dont affect stuff that needs constant power, ie computer, light outside plug for trickel charger. What isnt on kill switches have seperate switches, course there is always the breakers.

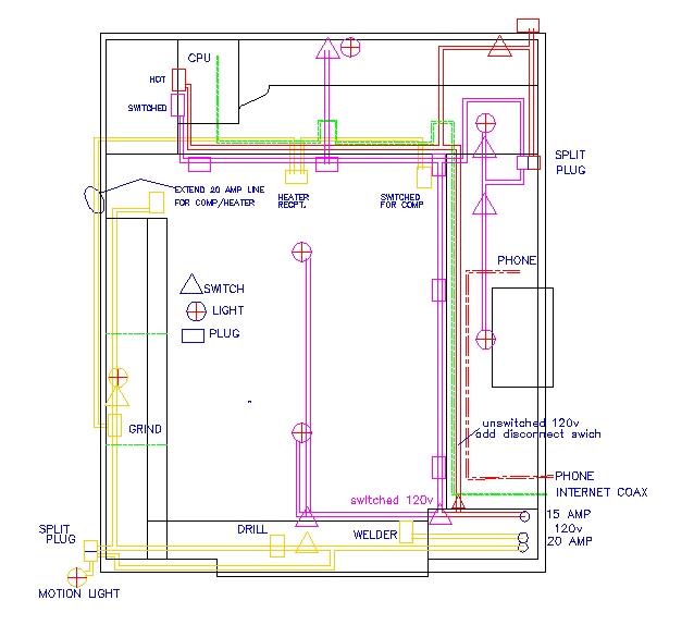
UPDATE 2020

Recent addtion of portable compressor for in shop use. Extend 20 amp line under shelf for air compressor and elec. heater.

2 new receptacles, One switched for compressor and another relocating plug for electric heater.
Wiring details and compressor mods/addtion page

Back to top of this page
Radio install that started this
Back to Our shop mods & addtions section